Продам квартирy, 35 м2, 1 комната, 4 этаж, Пхукет
14 264 250 руб.
35 м2
1
комната
этаж 4 из 8
Пхукет, 4/2
Продажа студии в новом премиум-комплексе Capri Residence
Локация:
Таиланд, Пхукет, район пляжа Банг Тао, ул. Сой Панг Тхау 4/2
Элитная локация в самом сердце Пхукета, всего в 850 метрах от пляжного клуба Catch Beach Club
О комплексе
Capri Residence — новый жилой комплекс бизнес-премиум класса от застройщика Fantasea Plus.
Проект сочетает современную архитектуру, неподвластную времени элегантность и очарование тропического Пхукета.
Здесь созданы все условия для комфортной жизни и отдыха на уровне пятизвёздочного отеля.
Тип дома: монолитный
Парковка: есть
Срок сдачи: 4 квартал 2025 года
Выдача ключей: 4 квартал 2025 года
Регистрация: Таиланд
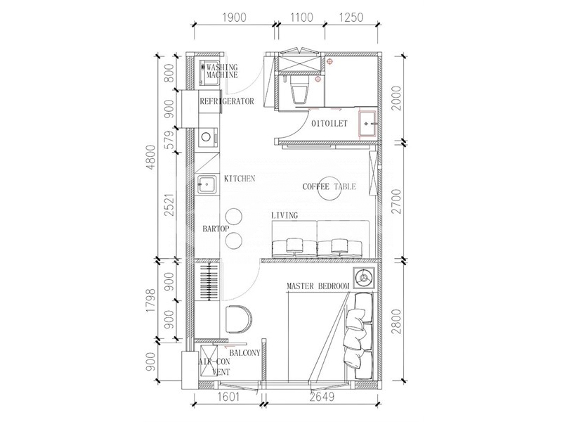
О квартире
Тип: студия
Номер: B411
Этаж: 4 из 8
Общая площадь: 35 м²
Площадь кухни: 16.9 м²
Высота потолков: 2.8 м
Отделка: «под ключ» — готова к проживанию или сдаче в аренду
Стоимость
Цена при 100% оплате: 14 264 250
Цена за м²: 407 550
Договор: купли-продажи
Преимущества
Центральное расположение в престижном районе Чонг Тале
Всего 850 м до пляжа и легендарного Catch Beach Club
Большой бассейн 1 798 м² и современная инфраструктура
Удобный доступ к ресторанам, магазинам и туристическим зонам
Высокий инвестиционный потенциал и востребованность в аренде
фитнес-зал, зона отдыха, охрана, рецепция
По всем вопросам обращайтесь!
| Тип предложения | Продажа |
|---|---|
| Тип объекта | Квартира |
| Цена (руб.) | 14264250 |
| Количество комнат | 1 |
| Страна | Тайланд |
| Населенный пункт | Пхукет |
| Район города | Пхукет |
| Регион | Калининградская область |
| Номер квартиры (кабинета) | В411 |
| Цена за м2 (руб.) | 407550 |
| Этаж | 4 |
| Этажность | 8 |
| Тип строения | Новостройка |
| Год постройки | 2025 |
| Общая площадь (м2) | 35 |
| Жилая площадь (м2) | 11.7 |
| Площадь кухни (м2) | 16.9 |
| Планировка | Студия |
| Санузел | Совмещенный |
| Площадь терасс/балконов (м2) | 1.4 |
| Высота потолков (м) | 2.8 |
| Материал стен | Монолит |
| Материал перекрытий | Железобетон |
| Окна | Металлопластик стеклопакет |
| Номер в базе | 5625 |
Продажа; Квартира; 1 комната; Пхукет; Пхукет; Калининградская область; этаж 4 из 8; 2025 год постройки; Общая пл. 35; Жилая пл. 11.7; Пл. кухни 16.9; Планировка - Студия; Санузел - Совмещенный; 14264250 рублей; Бунякина Дарья Сергеевна (+79003524933); Номер в базе 5625;


Смотреть виртуальный обзор