Продам квартирy, 68.54 м2, 2 комнаты, 11 этаж, г. Калининград, Советский просп.



















11 200 000 руб.
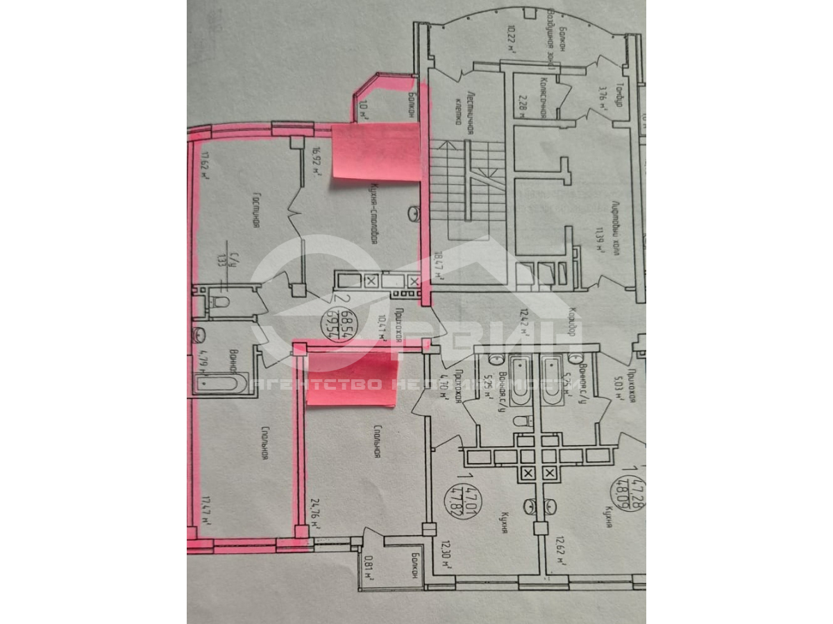
68.54 м2
2
комнаты
этаж 11 из 16
Калининград, Советский проспект, 81/1
Предлагаем к покупке видовую двухкомнатную квартиру в одном из лучших современных ЖК комфорт-класса в центре города!
ЖК "Адмиралтейский" расположен в самом комфортном, Центральном, районе города Калининграда.
О квартире:
- АВТОНОМНОЕ ОТОПЛЕНИЕ!
- выполнен современный качественный ремонт в спокойных тонах;
- квартира общей площадью 68,54 кв.м. с учетом лоджии, большая кухня-столовая 16,92 кв.м., две спальни правильной формы 17,62 и 17,47 кв.м., санузел 4,79 кв.м., прихожая 10,41 кв.м.;
- спальни на две разные стороны, из окон одной из спален панорамный вид на город, окна другой спальни выходят в тихий двор;
- можно арендовать место в подземном паркинге;
- светлая, солнечная, теплая, с комфортной аурой;
- в квартире есть всё, что нужно для приятной размеренной жизни, в том числе мебель в комнатах, большая гардеробная, удобные системы хранения, кухонная бытовая техника;
- два взрослых собственника, полная сумма в договоре.
О районе:
- самая удобная локация с точки зрения современной жизни: в 5 минутах несколько супермаркетов, популярнейшие рестораны города, в шаговой доступности лучшие школы города Лицей №49 и "Ганзейская ладья";
- наилучшая транспортная доступность, выезд на морское побережье (20 минут до морских курортов и пляжа), до железнодорожного Северного вокзала 2 остановки;
- до знаменитого района Амалиенау 10 минут прогулочным шагом, современный комплекс "точечной застройки" в окружении зелени и малоэтажных домов!
Все формы расчетов : ипотека, материнский капитал, военная ипотека, сертификаты.
Спешите записаться на просмотр! Вы можете стать счастливыми обладателями этой замечательной, светлой, красивой, удобной для жизни квартиры! Показ по договоренности.
Ориентиры:
- улица Леонова, Карла Маркса, Комсомольская, Красная, Каштановая аллея, Фестивальная Аллея, проспект Мира, Зоопарк, Амалиенау
- Гимназия №1, Лицей №49, ШИЛИ
- Фитнесс - центр Альбатрос
- Захаровский рынок
Тип предложения | Продажа |
---|---|
Тип объекта | Квартира |
Цена (руб.) | 11200000 |
Количество комнат | 2 |
Страна | Россия |
Улица | Советский, Проспект |
Населенный пункт | Калининград, Город |
Район города | Центральный район |
Регион | Калининградская область |
Цена за м2 (руб.) | 163408.229 |
Этаж | 11 |
Этажность | 16 |
Тип строения | Современный фонд |
Год постройки | 2016 |
Общая площадь (м2) | 68.54 |
Жилая площадь (м2) | 35.09 |
Площадь кухни (м2) | 16.92 |
Планировка | Изолированные комнаты |
Санузел | Совмещенный |
Отопление | Автономное газ |
Горячее водоснабжение | Котел |
Площадь терасс/балконов (м2) | 1 |
Высота потолков (м) | 2.7 |
Материал перекрытий | Железобетон |
Окна | Металлопластик стеклопакет |
Пол | Ламинат |
Возможна ипотека | Да |
Вид права | Собственность |
Номер в базе | 5319 |
Продажа; Квартира; 2 комнаты; Советский проспект; Калининград; Центральный район; Калининградская область; этаж 11 из 16; 2016 год постройки; Общая пл. 68.54; Жилая пл. 35.09; Пл. кухни 16.92; Планировка - Изолированные комнаты; Санузел - Совмещенный; Отопление - Автономное газ; 11200000 рублей; Шевченко Валерия Евгеньевна (+79114670255); Номер в базе 5319;